HERMOSO EDIFICIO DE oficinas en venta
Descripción
Fantástico edificio de oficinas en venta frente al mar en la zona de Carrasco, sobre Rambla República de México. Propiedad completamente refaccionada y actualizada. Cuenta con CCTV, reja perimetral, cerco eléctrico, tarketa magnética y TAG para control de acceso, cerradura electrónica, wifi, entre otros.
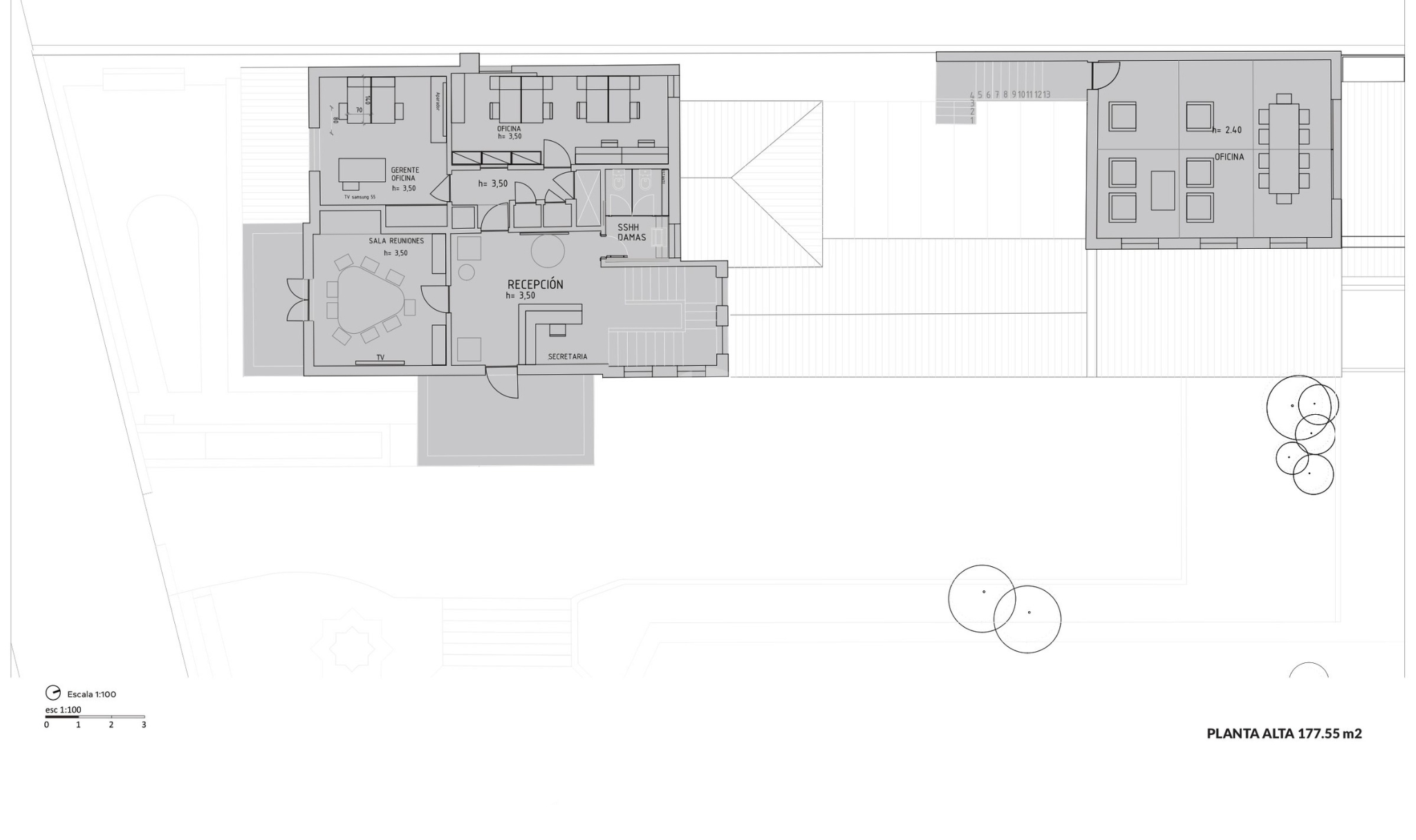
Son 572 m2 de superficie construida distribuidos en planta baja, entrepiso, planta alta y subsuelo. Posee salas de reuniones, despachos y áreas de uso común.
Imágenes









Planos

Detalles
Id de Propiedad: MVD6020
Tipo: Edificio de Oficinas
Superficie Construida: 572 m2
Superficie Predio: 600 m2
Niveles: 4 (PB + EP + PA + SS)
Consulte precio
Ubicación