CORPORATE BUILDING IN DOWNTOWN MONTEVIDEO (cbd)
Description
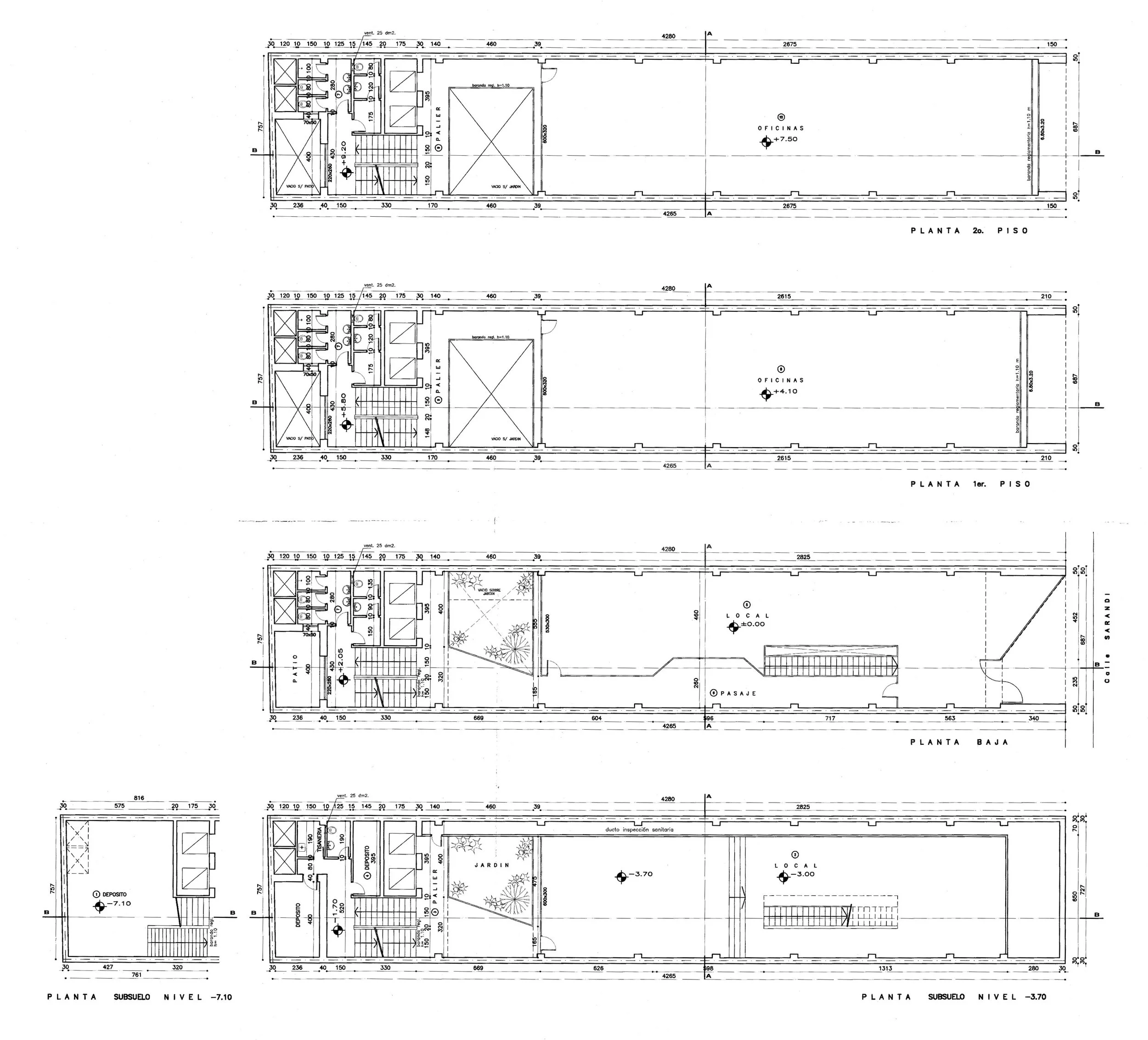
First-class corporate building for sale in downtown Montevideo (Ciudad Vieja) on the main pedestrian street in the CBD (Peatonal Sarandí), close to Plaza Matriz and Plaza Independencia. Built area of 2.025 sqm distributed in seven levels (ground floor, five upper levels and basement).
The open-plan layout allows for excellent space utilization while the glass facade and central skylight provide the right amount of natural light to working spaces and circulation areas. Vertical circulation core with two elevators and staircase that lead to all levels including the basement.
Also available for lease (price upon request).
Images





Floorplans



Details
Property Id: MVD6012
Type: Office Building
Built Area: 2.023 sqm
Lot Size: 600 sqm
Levels: 7 (Basement + Ground Floor + 5)
Construction Year: 2002
USD 1.500.000
Location